Das Hotel allgemein
HAZcottage bietet eine komfortable Unterkunft mit kostenlosem WLAN und Meerblick. Die Villa verfügt über einen Garten, eine Terrasse sowie eine Anzahl von Annehmlichkeiten, darunter kostenlose Fahrräder und einen kostenlosen Shuttle-Service. Zudem steht den Gästen ein kostenloser Privatparkplatz zur Verfügung.
Die Lage des Hotels
Die Unterkunft HAZcottage befindet sich in Makinohara, in der Nähe des Rengejiike Parks und des Stadions Shizuoka ECOPA. Der Flughafen Shizuoka ist nur 16 km entfernt.
Zimmer / Unterbringung im Hotel
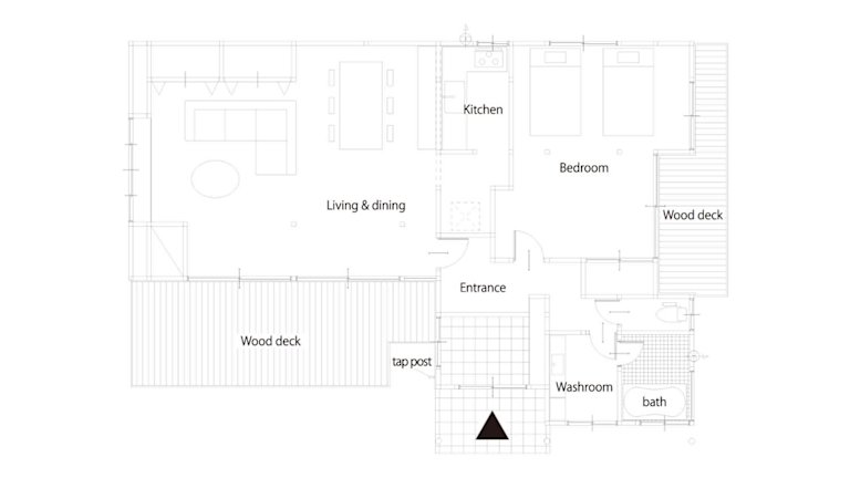
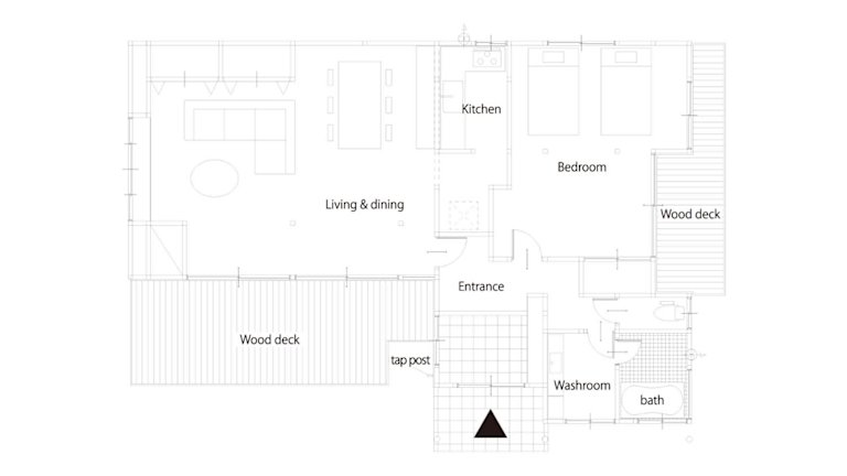
Die Villa ist klimatisiert und umfasst 2 Schlafzimmer, ein Wohnzimmer sowie eine voll ausgestattete Küche mit Kühlschrank und Wasserkocher. Des Weiteren bietet sie 1 Badezimmer mit Bidet und Dusche. Handtücher und Bettwäsche werden bereitgestellt. Zusätzlich können die Gäste einen Whirlpool nutzen.
Sport und Unterhaltung
In der Umgebung der Unterkunft bestehen Möglichkeiten zum Fahrradfahren, wodurch die Gäste die natürliche Schönheit der Region erkunden können.










